Discover Your Dream Living Space: Fox Run Novi Floor Plans Tailored to Perfection

Fox Run Novi Floor Plans

Discover a variety of floor plans at Fox Run Novi. Choose from spacious layouts, modern designs, and luxurious amenities. Find your dream home today!

Looking for the perfect place to call home in Novi? Look no further than Fox Run Novi Floor Plans! With a variety of spacious and well-designed options to choose from, this community has something for everyone. Whether you're a young professional in need of a cozy one-bedroom apartment or a growing family in search of a sprawling four-bedroom townhome, Fox Run Novi Floor Plans has got you covered. Plus, with convenient amenities and a prime location near shopping, dining, and entertainment options, you'll have everything you need right at your fingertips. So why wait? Discover your dream living space at Fox Run Novi Floor Plans today!

Fox

Introduction

When it comes to finding the perfect home, there are numerous factors to consider. One crucial aspect is the floor plan, as it determines the layout and functionality of the living space. Fox Run Novi, a premier community in Michigan, offers an array of exquisite floor plans designed to cater to various lifestyles and preferences. This article will explore the different floor plans available at Fox Run Novi and highlight their unique features.

The Glenwood

The

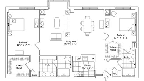
One of the most sought-after floor plans at Fox Run Novi is The Glenwood. This spacious design offers 3 bedrooms, 2.5 bathrooms, and a 2-car garage. The open concept layout seamlessly connects the kitchen, dining area, and living room, creating a harmonious flow that is perfect for entertaining guests or spending quality time with family. The Glenwood also boasts a luxurious primary suite with a walk-in closet and an ensuite bathroom.

The Ashwood

The

If you're looking for a slightly smaller option, The Ashwood is an excellent choice. This charming floor plan features 2 bedrooms, 2 bathrooms, and a 2-car garage. The well-appointed kitchen opens up to the dining area and living room, creating a cozy and inviting atmosphere. The Ashwood also includes a den, which can be transformed into a home office or a hobby room, catering to your specific needs.

The Willow

The

The Willow floor plan at Fox Run Novi offers a single-level living experience that is both convenient and comfortable. This design includes 2 bedrooms, 2 bathrooms, and a 2-car garage. The open concept layout maximizes space and natural light, making the living areas feel bright and airy. The primary suite features a walk-in closet and an ensuite bathroom, providing a private sanctuary within your home.

The Oakmont

The

For those in need of more space, The Oakmont floor plan is a perfect fit. This expansive design offers 3 bedrooms, 2.5 bathrooms, and a 3-car garage. The gourmet kitchen is a chef's dream, featuring modern appliances and ample counter space. The open layout seamlessly connects the kitchen, dining area, and great room, providing a welcoming space for gatherings and everyday living.

The Maplewood

The

If you desire a home with a first-floor primary suite, The Maplewood floor plan is worth considering. This thoughtfully designed layout offers 2 bedrooms, 2.5 bathrooms, and a 2-car garage. The primary suite is conveniently located on the main level, providing easy access and privacy. The second floor includes a loft area that can be transformed into a cozy reading nook or a versatile workspace.

The Birchwood

The

For those seeking a more traditional two-story home, The Birchwood floor plan is an ideal choice. This spacious design offers 4 bedrooms, 2.5 bathrooms, and a 2-car garage. The main level features an open concept layout with a large kitchen, dining area, and great room, making it perfect for hosting gatherings or spending quality time with loved ones. The second floor includes a laundry room for added convenience.

The Cedarwood

The

If you're in search of a home that offers flexibility and versatility, The Cedarwood floor plan might be the perfect fit. This unique design provides 3 bedrooms, 2.5 bathrooms, and a 2-car garage. The main level offers an open concept layout, while the second floor features a loft area that can be transformed into a home office, a playroom, or an additional living space to suit your needs.

The Hawthorn

The

The Hawthorn floor plan at Fox Run Novi is a thoughtfully designed ranch-style home that offers both comfort and convenience. This layout includes 2 bedrooms, 2 bathrooms, and a 2-car garage. The spacious kitchen opens up to the dining area and great room, creating a seamless flow that is perfect for entertaining. The primary suite features a walk-in closet and an ensuite bathroom for added luxury.

The Redwood

The

For those in need of ample space and a first-floor primary suite, The Redwood floor plan is an excellent choice. This expansive design offers 4 bedrooms, 3.5 bathrooms, and a 3-car garage. The main level features a stunning open concept layout with a gourmet kitchen, dining area, and great room. The primary suite is conveniently located on the first floor and includes a luxurious ensuite bathroom and a spacious walk-in closet.

The Laurelwood

The

The Laurelwood floor plan at Fox Run Novi is a grand two-story home that offers plenty of space for the whole family. This design includes 4 bedrooms, 3.5 bathrooms, and a 3-car garage. The main level features an open concept layout with a spacious kitchen, dining area, and great room. The second floor includes a loft area that can be transformed into a media room or a playroom, providing additional living space for everyone to enjoy.

Conclusion

Fox Run Novi offers a wide range of floor plans designed to cater to different lifestyles and preferences. Whether you prefer a cozy ranch-style home or a spacious two-story design, there is a floor plan to suit your needs. The variety of options available ensures that each homeowner can find their perfect match. With its exceptional amenities and prime location, Fox Run Novi is the ideal community to call home.

Welcome to Fox Run Novi Floor Plans!

In this guide, we will take you through the exquisite floor plans offered by Fox Run Novi. Whether you are looking for a cozy one-bedroom apartment or a spacious four-bedroom home, Fox Run Novi has a variety of options to suit your lifestyle.

From the moment you step into a Fox Run Novi floor plan, you will be captivated by the attention to detail and luxurious finishes.

Each home is thoughtfully designed to provide both functionality and style, creating a living space that you will love to come home to.

The floor plans at Fox Run Novi are designed with open concept living in mind.

The seamlessly integrated living, dining, and kitchen areas create a spacious and inviting atmosphere, perfect for entertaining friends and family.

If you are a cooking enthusiast, you will appreciate the gourmet kitchens offered in many of the Fox Run Novi floor plans.

These kitchens feature top-of-the-line appliances, ample counter space, and modern cabinetry, making it a joy to prepare meals and indulge in your culinary creations.

After a long day, unwind in the serene bedrooms that are designed to provide maximum comfort and relaxation.

With spacious closets and large windows that let in plenty of natural light, the bedrooms at Fox Run Novi offer a peaceful retreat to rest and recharge.

Pamper yourself in the spa-like bathrooms found in Fox Run Novi floor plans.

From elegant vanities to luxurious soaking tubs and walk-in showers, these bathrooms are designed to create a tranquil escape where you can unwind and rejuvenate.

With the flexibility of remote work becoming increasingly popular, many of the Fox Run Novi floor plans include dedicated home office spaces.

These quiet and well-designed areas allow you to comfortably work from home while maintaining a healthy work-life balance.

Take advantage of the beautifully landscaped outdoor spaces that accompany many of the Fox Run Novi floor plans.

From private patios to community gardens, these outdoor retreats provide the perfect backdrop to relax and enjoy nature.

At Fox Run Novi, we understand that your furry friends are an important part of your family.

Many of our floor plans are designed to accommodate pets, with features such as pet-friendly flooring and access to nearby walking trails.

No need to worry about running out of storage space!

Fox Run Novi floor plans offer ample closets, storage rooms, and even garage space, ensuring that you have plenty of room to store your belongings and keep your living space organized.

With a wide range of floor plans designed with your comfort and lifestyle in mind, Fox Run Novi is the perfect place to call home.

Experience luxury living at its finest - contact us today to learn more about our available floor plans and schedule a tour!

Once upon a time in the charming town of Novi, there stood a magnificent residential community known as Fox Run. Nestled amidst lush greenery and picturesque landscapes, Fox Run offered a haven for those seeking a peaceful and luxurious lifestyle.

As one entered the grand entrance of Fox Run, they were immediately captivated by the elegance and beauty of the surroundings. The meticulously designed floor plans of the homes further added to the allure of this exceptional community.

1. Spaciousness: The floor plans at Fox Run Novi were carefully crafted to maximize space and provide residents with ample room to live and thrive. From cozy one-bedroom apartments to expansive three-bedroom villas, there was a home to suit every individual or family's needs.

2. Functional Layouts: Each floor plan at Fox Run Novi was thoughtfully designed to offer a functional layout that seamlessly blended style and practicality. The placement of rooms, the flow of living spaces, and the integration of modern amenities made everyday living a breeze.

3. Versatility: The floor plans at Fox Run Novi embraced versatility, allowing residents to customize their living spaces according to their personal preferences and lifestyles. Whether they desired an open-concept living area for entertaining guests or a private study for quiet reflection, the options were endless.

4. Modern Amenities: In addition to the exceptional floor plans, Fox Run Novi also offered an array of modern amenities that catered to the needs and desires of its residents. From state-of-the-art fitness centers to serene walking trails, there was something for everyone to enjoy.

5. Attention to Detail: One could not help but notice the meticulous attention to detail that went into crafting the floor plans at Fox Run Novi. Every nook and cranny was carefully considered, ensuring that each home exuded a sense of luxury and sophistication.

As the sun set over Fox Run Novi, casting a warm glow over the community, it became clear that the floor plans were not just architectural designs but rather an embodiment of a lifestyle. They were a testament to the commitment of Fox Run Novi in providing its residents with a home that was both functional and beautiful.

In conclusion, the floor plans at Fox Run Novi were a true masterpiece. They offered spaciousness, functionality, versatility, modern amenities, and an unmatched attention to detail. Whether one desired a cozy apartment or a luxurious villa, Fox Run Novi had a floor plan to suit their every need. It was a place where dreams turned into reality and where memories were made.

Thank you for taking the time to explore our blog and learn more about Fox Run Novi Floor Plans. We hope that the information provided has been helpful in giving you a glimpse into the variety and quality of floor plans available at Fox Run Novi. Whether you are in search of a spacious one-bedroom apartment or a luxurious two-bedroom villa, our community offers an array of options to suit your needs and preferences.

At Fox Run Novi, we prioritize creating living spaces that are not only comfortable and functional but also aesthetically pleasing. Our floor plans are thoughtfully designed with open layouts, modern finishes, and ample natural light to create a warm and inviting atmosphere. No matter which floor plan you choose, you can expect high-quality craftsmanship and attention to detail throughout your home.

One of the key advantages of living at Fox Run Novi is the flexibility and customization options available for our floor plans. We understand that everyone has unique requirements, and our team is dedicated to working with you to personalize your living space to meet your specific needs. From selecting the perfect color palette to choosing upgraded fixtures and appliances, we will guide you through the process of creating a home that reflects your individual style and preferences.

If you have any further questions or would like to schedule a tour to see our floor plans in person, please do not hesitate to reach out. We would be delighted to assist you in finding the perfect home at Fox Run Novi. Thank you again for visiting our blog, and we look forward to welcoming you to our vibrant and thriving community.

1. What types of floor plans are available at Fox Run Novi?

At Fox Run Novi, you can find a variety of floor plans to suit your needs. They offer spacious one-, two-, and three-bedroom apartment homes, as well as charming cottages and villas. Each floor plan is thoughtfully designed to maximize comfort and functionality.

2. Do the apartments at Fox Run Novi come with any special features?

Absolutely! The apartments at Fox Run Novi come with a range of special features to enhance your living experience. Some of these features may include modern kitchens with stainless steel appliances, granite countertops, walk-in closets, in-unit washer and dryer, private patios or balconies, and more. These amenities can vary depending on the specific floor plan you choose.

3. Are there any age restrictions for residents at Fox Run Novi?

Yes, Fox Run Novi is a senior living community that caters to individuals aged 62 and over. However, they do not discriminate based on race, religion, gender, or national origin.

4. Are the floor plans at Fox Run Novi pet-friendly?

Yes, Fox Run Novi welcomes pets! They understand the importance of furry companions and offer pet-friendly floor plans. However, certain restrictions and limitations may apply, so it's always a good idea to check with their management regarding their pet policy.

5. Can I customize the floor plan to suit my preferences?

While the floor plans at Fox Run Novi are carefully designed to provide comfort and convenience, they may have limited customization options available. However, you can always discuss your preferences with their team and see if any adjustments can be made to accommodate your needs.

0 Response to "Discover Your Dream Living Space: Fox Run Novi Floor Plans Tailored to Perfection"

Post a Comment

Iklan Atas Artikel

Iklan Tengah Artikel 1

'width' : 300, 'params' : {} };

Iklan Tengah Artikel 2

Iklan Bawah Artikel